145 Bannockburn Road, Turramurra
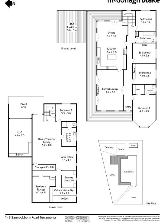
This home at 145 Bannockburn Road, Turramurra, offers five bedrooms, three bathrooms and off street parking for three cars including a carport. The home is on a large north-east orientated block of 1134sqm.
The layout is family-friendly the main level has four well-sized bedrooms, arranged around a central hallway, with the master bedroom featuring a walk-in robe and ensuite. The other bedrooms share the main bathroom with bath. The spacious formal lounge flows into the large kitchen and dining area, opening onto a covered BBQ pavilion that looks over the backyard and decked pool.
The lower level expands the usable space with a flexible area that includes a fifth bedroom, a family room great for a kids rumpus, a separate home office and a cellar/gym. A large laundry and under-house storage add extra convenience.
With its character facade, wide verandah and manicured gardens, this home has great charm with modern updates and has plenty of scope for a family to move in and enjoy while having room to personalise down the track.
Price Est: Early $4ms

